
BUCHER dubultā zobratu sūknis QX23/23 QX33/23 QX33/33 QX43/23 QX43/33
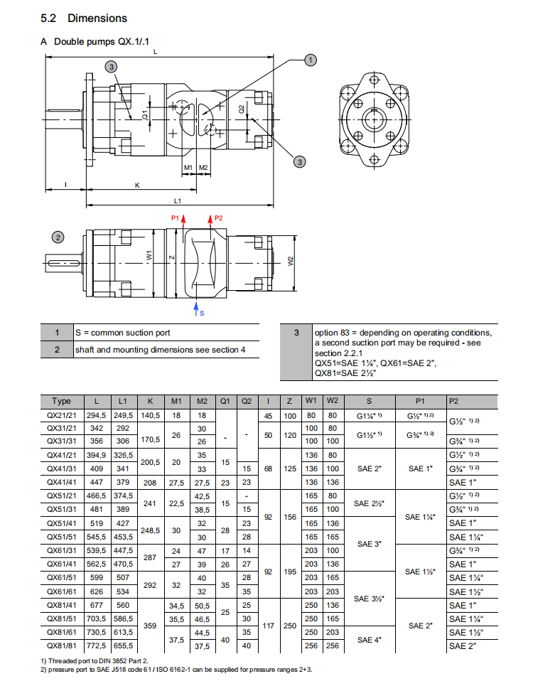
QX dubultie sūkņi sastāv no diviem atsevišķiem sūkņiem, kas uzstādīti uz kopējas piedziņas vārpstas. Hidrauliski abi sūkņi darbojas neatkarīgi viens no otra, bet tiem ir kopīgs iesūkšanas ports sūkņa centrālajā daļā. Kombinācijas lielākais sūknis atrodas vārpstas galā (piedziņas pusē) un tiek saukts par sūkni 1. Ar vienādiem rāmja izmēriem sūknis ar lielāku darba tilpumu atrodas piedziņas pusē. Dubultus sūkņus var kombinēt, kā parādīts nākamajā tabulā. . Ja abu sūkņu krustpunktā ir parādīts burts, tas apzīmē lapu 5.2. sadaļā, kurā ir attiecīgais izmēru rasējums. Ja krustošanās punktā nav burta, tad šī sūkņu kombinācija nav iespējama. SVARĪGI: dubultsūkņi ar spiediena diapazonu 4 pēc pieprasījuma QX32/21QX42/21QX42/31QX52/21QX52/31QX52/41QX62/31QX62/41QX62/541/QX62/541/QX828 61 QX22/22QX32/22QX32/32QX42/22QX42/32QX42/42QX52/22QX52/32QX52142QX52/52QX62/32QX62142QX62/52QX42/22QX82/52Q2QX8 82/82 QX32/23QX42/23QX42/33QX52/23QX52/33QX52/43QX62/33QX62/ 43QX62/53QX82/43QX82/53QX82/63 QX33/21QX43/21QX43/31QX53/21QX53/31QX53/41QX63/31QX63/41QX63/51QX83/51Q1Q83/51Q1Q83 33/22QX33/32QX43/22QX43/32QX43/42QX53/22QX53/ 32QX53/42QX53/52QX63/32QX63/42QX63/52QX63/62QX83/42QX83/52QX83/62QX83/82 QX23/23QX33/23QX33/32QX63/42QX63/33Q3Q4X43/33Q3X4X4 53/33QX53/43QX53/53QX63/33QX63/43QX63/53QX63/63QX83 /43QX83/53QX83/63QX83/83 QX43/43 QX53/23 QX53/33 QX53/43 QX53/53 QX63/33 QX63/43 QX63/53 QX63/63 QX83/43 Q36 QX83/43 Q33/43 QX8 QX31/23 QX31/33 QX41/23 QX41/33 QX41/43 QX51/23 QX51/33 QX51/43 QX51/53 QX61/33 QX61/43 QX61/53 QX61/63 QX81/63 QX81/63 QX81/43 QX81/43 83 QX21/21 QX31/21 QX31/31 QX41/21 QX41/31 QX41/41 QX51/21 QX51/31 QX51/41 QX51/51 QX61/31 QX61/41 QX61/51 Q15 QX61/51 QX61/61 QX61 /61 QX81/81 QX21/22 QX31/22 QX31/32 QX41/22 QX41/32 QX41/42 QX51/22 QX51/32 QX51/42 QX51/52 QX61/32 QX61/42 Q261/42 Q261 QX81/52 QX81/62 QX81/82


|
BUCHER Dubultzobratu sūknis QX23/23 QX33/23 QX33/33 QX43/23 QX43/33 QX43/43 QX53/23 QX53/33 QX53/43 QX53/53 QX63/33 QX63/43 QX63/53 QX63/63 QX83/43 QX83/53 QX83/63 QX83/83 QX21/23 QX31/23 QX31/33 QX41/23 QX41/33 QX41/43 QX51/23 QX51/33 QX51/43 QX51/53 QX61/33 QX61/43 QX61/53 QX61/63 QX81/43 QX81/53 QX81/63 QX81/83 QX21/21 QX31/21 QX31/31 QX41/21 QX41/31 QX41/41 QX51/21 QX51/31 QX51/41 QX51/51 QX61/31 QX61/41 QX61/51 QX61/61 QX81/41 QX81/51 QX81/61 QX81/81 QX21/22 QX31/22 QX31/32 QX41/22 QX41/32 QX41/42 QX51/22 QX51/32 QX51/42 QX51/52 QX61/32 QX61/42 QX61/52 QX61/62 QX81/42 QX81/52 QX81/62 QX81/82
|












Populāri tagi: BUCHER dubultā zobratu sūknis QX23/23 QX33/23 QX33/33 QX43/23 QX43/33









